
按照默认设置安装完毕SolidWorks后,会在桌面增加eDrawings 的图标(64位系统增加两个图标,一个32位、一个64位),很多用户不清楚eDrawings的作用,而直接将图标删除,甚至在安装时选择不安装eDrawings。那么eDrawings是什么?有什么用呢?其实eDrawings的作用还是比较大的,edrawing核心功能是2D 和 3D 产品设计数据的免费查看和发布应用,支持SolidWorks, AutoCAD, Inventor, Pro/ENGINEER CATIA V5, Unigraphics/NX, Solid Edge, CoCreate's OneSpace software, Google SketchUp, eDrawings RapidFire Lite等主流2D、3D格式的查看和发布。

Edrawing图标
现在笔者探讨一下edrawing在设计研发中的应用。Edrawing可以作为产品研发负责人审图和看图的利器,产品研发负责人以审图和看图为主要工作,一般不从事一线产品设计,如果设计工程师使用SolidWorks完成设计后,产品研发负责人如何对SolidWorks图纸进行审图呢?需要安装一个SolidWorks吗?安装SolidWorks是比较好的方式,但是SolidWorks对硬件要求较高,并且产品研发负责人不从事一线设计,安装SolidWorks用于看图和审图显然是大材小用,并且占用企业SolidWorks数量,造成资源不能充分利用,好在SolidWorks提供了免费的edrawing版本(用户可以登陆www.edrawingsviewer.com免费下载),产品研发负责人可以单独安装edrawing,而不需要安装复杂的SolidWorks软件。
如下图是某设计工程师完成了某个产品的设计:

产品零件图

产品工程图
然后将该图纸发送给产品研发负责人审阅,该负责人收到审图申请后,使用edrawing可以直接打开SolidWorks工程图,如下图。需要提示的是,发给产品研发负责人审核时,只需要单独发送工程图即可,而不需要将工程图及其对用的模型一并发送,从而减少发送的数据量和复杂程度。

Edrawing支持SolidWorks工程图

Edrawing打开SW工程图
Edrawing提供比较全面的审图标记用工具,并且支持对标记样式的个性化定义,如下图。

Edrawing标记工具

Edrawing标记工具自定义
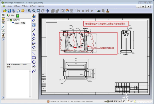
产品研发负责人在图纸中增加两条审阅意见,然后点击保存,退出审图。然后将审图完毕的消息通知相关工程师。如下图:

当工程师得到完成审图的通知后,他还可以直接使用SolidWorks打开该工程图,并且项目负责人的审阅意见将直接显示在工程图中,如下图:

阅读完毕审阅意见后,可以将意见隐藏或者删除,然后根据项目负责人的审阅意见修改工程图,如下图:

通过edrawing提供的设计审阅,可以直接在原SolidWorks工程图上添加审阅意见,并且审阅意见完整保留在原SolidWorks工程图中,并发送至相关工程师,从而提高了工程图审阅意见传递的准确性。在该模式下,将纸质图纸上审阅的模式变成电子审阅的模式,结合PDM可以大大提高审阅的效率,并且为无纸化设计、远程设计协作提供了可能。